Casa Nova Realty Logo
Reception lobby with wooden slat divider, geometric accent wall, and marble counter in Costa del Este Panama
Reception: Modern reception area in new medical suite with glass walls and luxury design.
Elevation schematic of clinic interior walls with dimension markings in Costa del Este
Floor plan: Architectural plan showing office division and wall finishes.
Top view of contemporary living room with geometric wall and wood panels Costa del Este
Sample render: Sample interior finish idea for commercial or residential fit-out.
Unfinished open space with white walls, exposed ceiling ducts, big window Costa del Este Panama
Exam room shell: Shell condition room ready for clinic customization.
Bare concrete floor and exposed ceiling in shell unit with window to green spaces
Unfinished room: Ample raw space for clinic or office finishes.
Shell space for clinic or retail unfinished concrete floors and white walls Costa del Este
Unfinished area: Blank canvas for customization as specialty office.
Modern interior concept with geometric design and wood panel wall in Panama
Concept design: Example rendering for interior design inspiration.
Glass partition, wood slats, geometric accent wall in a reception Costa del Este Panama
Reception concept: Lobby entrance example finished to inspire your fit-out.
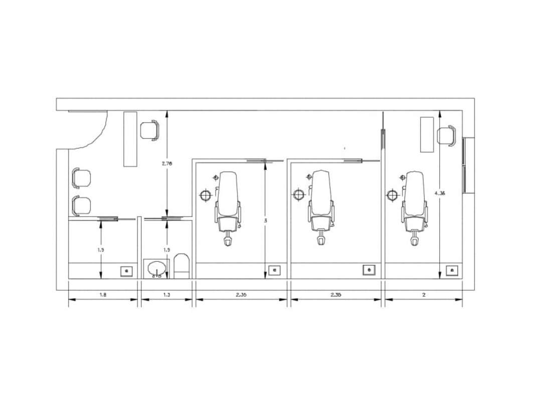
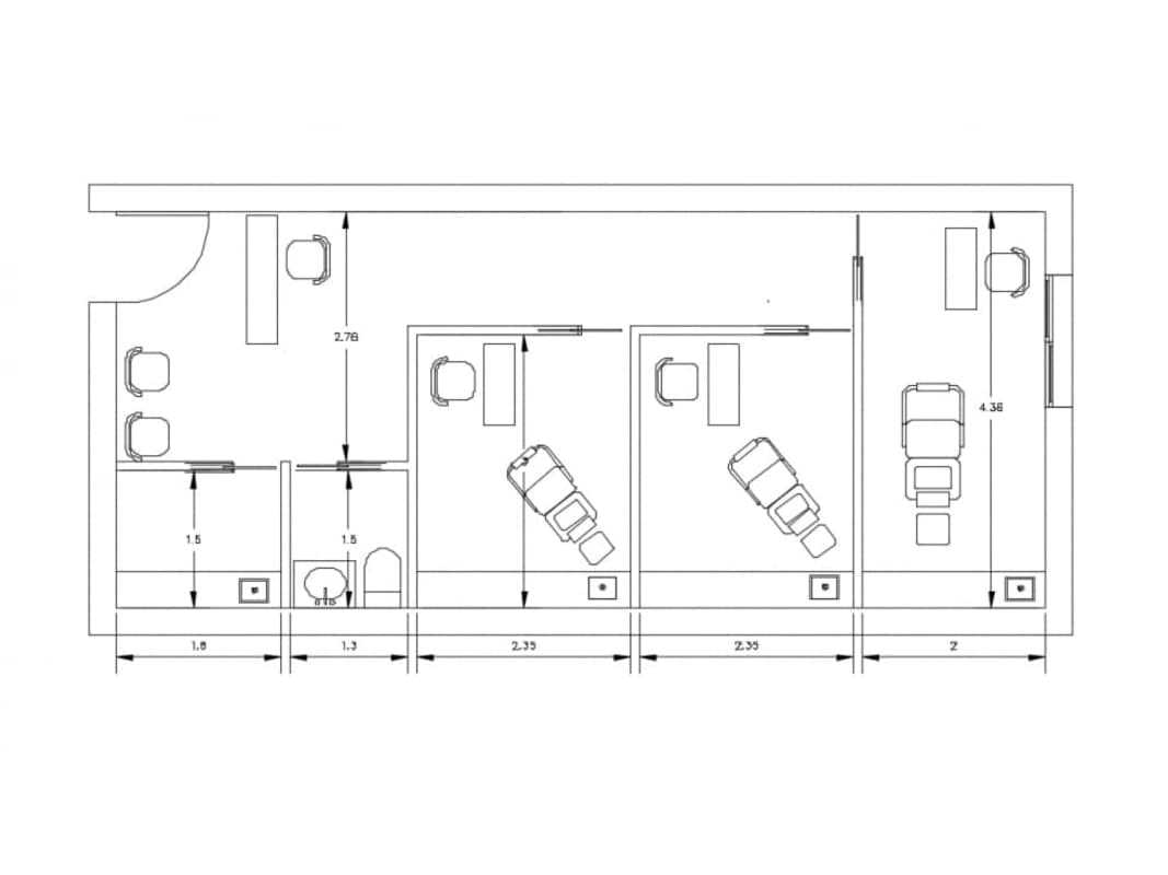
Schematic floor plan showing three exam rooms, waiting lobby, bathrooms Costa del Este
Floor plan: Detailed office layout ideal for clinic setup.
Interior unfinished clinic room exposed ceiling concrete floors large window in Panama
Unfinished space: Shell state office awaiting custom medical buildout.
Floor plan showing exam rooms reception dental unit areas Town Center Costa del Este
Clinic plan: Layout idea for dental or medical specialty practice.
Concrete floors, exposed ceiling ducts, unfinished interior with window Costa del Este Panama
Shell condition: Raw unit ideal for personalized clinic outfitting.
Medical Office for Rent

Medical Office for Rent Costa del Este Town Center Panama

Town Center, Costa del Este, Panama City

USD1,450
1 45.0 m² 1

About this Medical Office

Brand new medical office located in Tower Bambú at Town Center Costa del Este, offering 45 m² intelligently divided into three exam rooms plus reception and kitchenette. Main exam room features direct bathroom access; other rooms have water outlets for sinks or dental use. Designed to accommodate all specialties — customize to your needs. Unit boasts large windows providing excellent natural light, ceramic tile flooring, modern gypsum ceiling, inverter ACs, security points, and high-end finishes. Positioned on the 5th floor close to hospital waiting areas, with easy access for patients from mall parking and elevators. Dynamic social hub with pharmacies, dining, event spaces and abundant amenities. Price $1,450/month. Flexible lease or purchase option. Start or expand your practice in Panama's top growth corridor today with Casa Nova Realty Panama.

Contact Maria Lopez at Casa Nova Realty Panama today to schedule a viewing! Reference Listing ID: 2LqWR89.

Key Features

  • Three exam rooms with water access
  • Reception area and waiting space
  • Private and accessible bathroom
  • Bright natural light with panoramic windows
  • Inverter air conditioning installed
  • Kitchenette area for staff
  • Security wiring ready
  • Modern gypsum high ceilings
  • Proximity to hospital entrance and labs
  • Parking for patients and doctors

Detailed Features

Property Details

TypeMedical office
CategoryCommercial
Size45 m²
Lot Size45 m²
Bathrooms1
Parking1
FurnishedNo
Pets AllowedNo
Price/m²USD32.22 / m²
Listing ID2LqWR89
Year Built2024

Town Center Costa del Este Tower Bambú Amenities

Underground Parking

Dedicated patient and tenant parking with ample spaces

Central Air Conditioning

Efficient central AC system

Multiple High-Speed Elevators

Fast elevators for patients and medical staff

Food Court

Variety of dining options within the center

Pharmacies On-Site

Multiple pharmacies providing convenience for healthcare clients

Security System

24/7 surveillance and security patrols

Concierge Service

Lobby with reception and information desk

Wheelchair Accessibility

ADA-compliant entrances and elevators

Green Areas & Social Spaces

Outdoor terraces and seating for patients and visitors

Conference Facilities

Event rooms for workshops or seminars

Location & Nearby

Loading Map...

Neighborhood Highlights

  • Prime business district in Panama City
  • Close to airport corridor and South Corridor highway
  • Walking distance to luxury shopping and fine dining
  • Surrounded by multinational corporate offices
  • High-income residential area

Nearby Landmarks

  • Town Center Mall Costa del Este (within complex)
  • Hospital Pacifica Salud (200m)
  • Costa del Este Corporate Park (300m)
  • Murano Building (150m)
  • Costa del Este Sports Park (600m)
*Disclaimer: Property information is deemed reliable but not guaranteed and should be independently verified. Availability, price, and details are subject to change. Measurements are approximate. Listing ID: 2LqWR89. Last updated: 2025-11-07T23:59:00Z*

Frequently Asked Questions

What is the monthly rent for this property?
The monthly rent for this medical office is $1,450 USD per month.
Where is this property located?
This property is located in Costa del Este, Panama City, Panama. Contact Casa Nova Realty for the exact address and to schedule a viewing.
How can I schedule a viewing of this property?
To schedule a viewing, contact Casa Nova Realty Panama at +507-6361-1367 (phone or WhatsApp) or email info@casanova.realty. Our bilingual team is available Monday-Friday 9AM-6PM and Saturday 10AM-2PM.
Call WhatsApp Email