Casa Nova Realty Logo
Historic three-story colonial building with wraparound balconies at Calle 12 & Av. A, Casco Viejo Panama
Exterior street view: Prime corner commercial property in Casco Viejo with colonial architecture and balconies.
Corner view of colonial mixed-use commercial building with balconies Casco Viejo
Exterior: Colonial architectural details with iron balconies and corner visibility ideal for retail.
Three-story colonial style building with balconies rented commercial units Casco Viejo Panama
External street view: Mixed-use investment with commercial spaces on ground floor in prime Casco Antiguo.
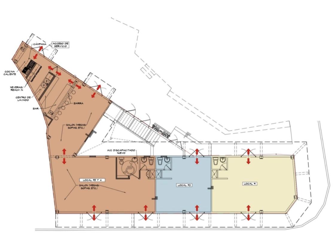
Architectural plan of commercial stores with dining area Casco Viejo Panama
Interior floor plan: Layout showing rental commercial units with kitchen/bar potential in historic district.
Vibrant cafe restaurant with mural in historic commercial unit Casco Viejo Panama
Interior dining area: Eclectic renovated interior suitable for cafe or retail with colorful design elements.
Commercial Property for Sale

Corner Commercial Units Investment Casco Viejo Panama in

Casco Viejo, San Felipe, Panama City

USD370,000
4 187.0 m²

About this Commercial Property

Investor opportunity: Two prime commercial units totaling approximately 187 m² located on the ground floor of a historic colonial building in vibrant Casco Viejo, Panama City. Corner property at Calle 12 & Av. A, San Felipe, steps from plazas, tourist hotspots, and luxury hotels. Both units are tenant-occupied generating attractive rental income, perfect for retail shops, cafes or restaurant concepts. High visibility wraparound façade with colonial balconies, recent upgrades & public parking nearby. Area benefits from major government improvements, tax incentives and booming foot traffic. Ideal for hospitality investors seeking rare commercial cash flow asset in UNESCO district. Asking $370,000, approx. $1,980/m². Contact Casa Nova Realty Panama for private tour and income details.

Contact Maria Lopez at Casa Nova Realty Panama today to schedule a viewing! Reference Listing ID: 5Fh6cW8.

Key Features

  • Ground floor commercial retail units
  • High visibility corner exposure
  • Existing tenants with income
  • Colonial balconies and architecture
  • Located in center of Casco Viejo tourist zone
  • Flexible for food, retail or service business
  • Near new parking and transportation links
  • Eligible for tourism development incentives

Detailed Features

Bathrooms

Bathroom 1

  • Multiple restrooms
  • Handicap accessible bathroom
  • Modern fixtures

Outdoor

Property Details

TypeCommercial Property
CategoryMixed-use Retail & Restaurant
Size186.86 m²
Lot Size186.86 m²
Bathrooms4
FurnishedNo
Pets AllowedNo
Price/m²USD1,980.09 / m²
Listing ID5Fh6cW8

Historic Casco Viejo Commercial Corner Amenities

Public Parking Access

Nearby large municipal parking for guests and clients.

New Street Infrastructure

Recently improved streets, lighting, sidewalks, and access routes.

Short-Term Rental Permitted

Building supports vacation rentals, hotel, restaurant and bar uses.

Tourist Zone Incentives

Area benefits from tax incentives for restoration & investment.

High Visibility Corner Exposure

Corner location with wraparound frontage maximizing visibility.

Historical Character

Original colonial facade with balconies, wooden features and ironwork.

Location & Nearby

Loading Map...

Neighborhood Highlights

  • UNESCO World Heritage historic center
  • Vibrant pedestrian zone
  • Tourist hotspot with constant foot traffic
  • Steps from plazas, museums, and Cathedral
  • Booming hospitality & entertainment district
  • Restored colonial architecture

Nearby Landmarks

  • Plaza Herrera (120m)
  • National Theater (250m)
  • Panama Canal Museum (450m)
  • Cinta Costera (650m)
  • American Trade Hotel (200m)
*Disclaimer: Property information is deemed reliable but not guaranteed and should be independently verified. Availability, price, and details are subject to change. Measurements are approximate. Listing ID: 5Fh6cW8. Last updated: 2025-11-07T23:59:00Z*

Frequently Asked Questions

What is the asking price for this property?
The asking price for this commercial property is $370,000 USD.
Where is this property located?
This property is located in San Felipe, Panama City, Panama. Contact Casa Nova Realty for the exact address and to schedule a viewing.
How can I schedule a viewing of this property?
To schedule a viewing, contact Casa Nova Realty Panama at +507-6361-1367 (phone or WhatsApp) or email info@casanova.realty. Our bilingual team is available Monday-Friday 9AM-6PM and Saturday 10AM-2PM.
Call WhatsApp Email